西城区 真武庙路二条10号楼10层2单元1102号(金融世家),北京法拍房-金铂顺昌房拍网
  • 搜索历史
清空历史搜索
开始找房
客服电话:15810997900
西城区 真武庙路二条10号楼10层2单元1102号(金融世家)
  • 西城区 真武庙路二条10号楼10层2单元1102号(金融世家)
  • 西城区 真武庙路二条10号楼10层2单元1102号(金融世家)
  • 西城区 真武庙路二条10号楼10层2单元1102号(金融世家)
  • 西城区 真武庙路二条10号楼10层2单元1102号(金融世家)
  • 西城区 真武庙路二条10号楼10层2单元1102号(金融世家)
  • 关注
    分享
    复制成功

    西城区 真武庙路二条10号楼10层2单元1102号(金融世家)

  • 起拍价:2502.40万
  • 市场价:5500万
  • *** 人报名
  • 2782人围观
  • 开拍截止时间: 拍卖已撤回
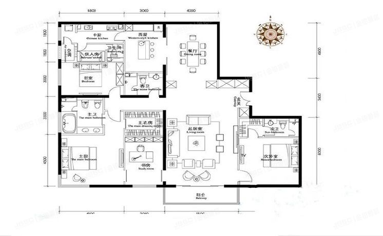
  • 四室两厅

    10层/共18层

  • 西南

    住宅

  • 287.17㎡

    2008年

  • 拍卖形式: 45
  • 保证金: 500万
  • 拍卖编号: J8550
  • 拍卖阶段: 一拍
  • 小区名称: 金融世家
  • 其他: >

    税费: 税费计算、房贷计算、首付成数...>

    开拍时间: 2022-07-29 10:00:00

    房源情况

    周边情况交通出行拍卖公告欠费瑕疵成交记录
    北京第二实验小学白云路分校,育民小学,北京八中木樨地校区,北京市月坛中学中国中医科学院广安门医院,宣武医院,北京协和医院,北京世纪坛医院天客隆,北京长安商场,王府井百货,首航超市,南礼士路公园,滨河公园

    小区介绍小区详情 >

    金融世家 (本小区共有拍卖房 13套)

    金融世家 法拍小区
    建筑年代:2008
    物业费用:
    总户数:
    停车位:
    绿化率:
    您的位置:金铂顺昌房拍网 > 房源列表 >西城区 真武庙路二条10号楼10层2单元1102号(金融世家)

    西城区 真武庙路二条10号楼10层2单元1102号(金融世家)

    预约看房
    关注房源

    拍卖编号: J8550

    西城区 真武庙路二条10号楼10层2单元1102号(金融世家) 北京法拍房
    • 西城区 真武庙路二条10号楼10层2单元1102号(金融世家)
    • 西城区 真武庙路二条10号楼10层2单元1102号(金融世家)
    • 西城区 真武庙路二条10号楼10层2单元1102号(金融世家)
    • 西城区 真武庙路二条10号楼10层2单元1102号(金融世家)
    • 西城区 真武庙路二条10号楼10层2单元1102号(金融世家)
    • 起拍价:

      2502.40

    • 市场价: 5500万
    • 单价: 87177.70元/㎡
    • 差价: 2998万
    • 捡漏指数:
    • 保证金: 500万
    • 四室两厅

      10层/共18层

    • 西南

      住宅

    • 287.17㎡ 提示

      2008年

    孙灿 法拍专员

    法拍服务从业经验8年

    在线咨询
    15810997900
    开拍截止时间: 拍卖已撤回
    开拍时间: 2022-07-29 10:00:00
    *** 人报名
    2782人围观

    法拍专员

    • 孙灿

      在线咨询

    房源信息

    基本信息

    • 小区名称:金融世家
    • 所在区域:西城区
    • 户型结构:四室两厅
    • 电梯情况:两梯四户
    • 装修情况:简装
    • 供暖情况:集中供暖
    • 车位情况:地下车位
    • 物业情况:

    拍卖信息

    • 拍卖阶段:一拍
    • 产权证号: ***
    • 房屋用途: ***
    • 租赁情况: ***
    • 抵押情况: ***
    • 查封情况: ***

    欠费及瑕疵

    注册登录可看立即注册

    房源特色

    房源标签
      \
    交通出行
    地铁1号线南礼士路站,木樨地站,地铁2号线复兴门站

    拍卖公告

    成交记录

    贷款计算

    • 贷款类型

    • 起拍价

      万元

    • 贷款比例

    • 商贷年限

    • 商贷利率

    • 还款方式

    • 开始计算

    月供(等额本息)

    小区介绍

    金融世家 (本小区共有拍卖房 13套)

    查看小区详情
    • 建筑年代: 2008
    • 所在版块: 西城区
    • 物业费用:
    • 总户数:
    • 停车位:
    • 绿化率:
    金融世家 法拍小区
    西城区 真武庙路二条10号楼10层2单元1102号(金融世家) 北京法拍房
    • 西城区 真武庙路二条10号楼10层2单元1102号(金融世家)
    • 西城区 真武庙路二条10号楼10层2单元1102号(金融世家)
    • 西城区 真武庙路二条10号楼10层2单元1102号(金融世家)
    • 西城区 真武庙路二条10号楼10层2单元1102号(金融世家)
    • 西城区 真武庙路二条10号楼10层2单元1102号(金融世家)

    推荐房源

    通州区 通胡大街68号19号楼3至4层50单元3D(水仙园)复式 北京法拍房

    通州区 通胡大街68号19号楼3至4层50单元3D(水仙园)复式

    三室两厅-175.36/㎡ 480.45万
    丰台区 南顶路281号6层3单元605(城市时尚家园) 北京法拍房

    丰台区 南顶路281号6层3单元605(城市时尚家园)

    三室一厅-161.57/㎡ 520.00万
    石景山区 苹果园一区28号楼1层112号 北京法拍房

    石景山区 苹果园一区28号楼1层112号

    两室一厅-80.07/㎡ 231.16万
    大兴区 黄村镇兴华园8号楼13层1303(兴华园) 北京法拍房

    大兴区 黄村镇兴华园8号楼13层1303(兴华园)

    两室一厅-113.54/㎡ 262.50万
  • 孙灿

    法拍经验:8年

  • 电话咨询
  • 在线咨询
  • 用户注册

    立即注册

    找回密码

    提交

    房源点评

    提交