海淀区 西二旗中路6号三区10号楼1至3层104(领秀硅谷),北京法拍房-金铂顺昌房拍网
  • 搜索历史
清空历史搜索
开始找房
客服电话:15810997900
海淀区 西二旗中路6号三区10号楼1至3层104(领秀硅谷)
  • 海淀区 西二旗中路6号三区10号楼1至3层104(领秀硅谷)
  • 海淀区 西二旗中路6号三区10号楼1至3层104(领秀硅谷)
  • 关注
    分享
    复制成功

    海淀区 西二旗中路6号三区10号楼1至3层104(领秀硅谷)

  • 起拍价:1242.00万
  • 市场价:2215.93万
  • *** 人报名
  • 4426人围观
  • 开拍截止时间: 成交价:1578.00万元
    结束时间: 2024-09-24 10:23:46
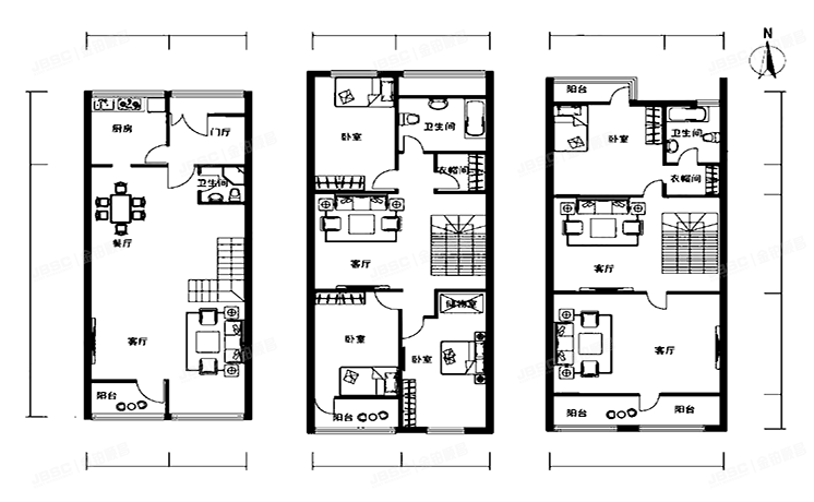
  • 四室一厅

    1层/共3层

  • 别墅

  • 263.6㎡

    2003年

  • 拍卖形式: 45
  • 保证金: 248万
  • 拍卖编号: J8130
  • 拍卖阶段: 二拍
  • 小区名称: 领秀硅谷
  • 其他: >

    税费: 税费计算、房贷计算、首付成数...>

    开拍时间: 2024-09-23 10:00:00

    房源情况

    周边情况交通出行拍卖公告欠费瑕疵成交记录
    育翔小学回龙观医院世纪华联超市

    小区介绍小区详情 >

    领秀硅谷 (本小区共有拍卖房 5套)

    领秀硅谷 法拍小区
    建筑年代:2003
    物业费用:1.86至3.18元/平米/月
    总户数:797户
    停车位:充足
    绿化率:40%
    您的位置:金铂顺昌房拍网 > 房源列表 >海淀区 西二旗中路6号三区10号楼1至3层104(领秀硅谷)

    海淀区 西二旗中路6号三区10号楼1至3层104(领秀硅谷)

    预约看房
    关注房源

    拍卖编号: J8130

    海淀区 西二旗中路6号三区10号楼1至3层104(领秀硅谷) 北京法拍房
    • 海淀区 西二旗中路6号三区10号楼1至3层104(领秀硅谷)
    • 海淀区 西二旗中路6号三区10号楼1至3层104(领秀硅谷)
    • 起拍价:

      1242.00

    • 市场价: 2215.93万
    • 单价: 47224.33元/㎡
    • 差价: 973万
    • 捡漏指数:
    • 保证金: 248万
    • 四室一厅

      1层/共3层

    • 别墅

    • 263.6㎡ 提示

      2003年

    孙佃 法拍专员

    法拍服务从业经验5年

    在线咨询
    15810997900
    开拍截止时间: 成交价:1578.00万元
    结束时间: 2024-09-24 10:23:46
    开拍时间: 2024-09-23 10:00:00
    *** 人报名
    4426人围观

    法拍专员

    • 孙佃

      在线咨询

    房源信息

    基本信息

    • 小区名称:领秀硅谷
    • 所在区域:海淀区
    • 户型结构:四室一厅
    • 电梯情况:不详
    • 装修情况:简装
    • 供暖情况:集中供暖
    • 车位情况:充足
    • 物业情况:中实杰肯道夫物业公司

    拍卖信息

    • 拍卖阶段:二拍
    • 产权证号: ***
    • 房屋用途: ***
    • 租赁情况: ***
    • 抵押情况: ***
    • 查封情况: ***

    欠费及瑕疵

    注册登录可看立即注册

    房源特色

    房源标签
      \
    交通出行
    392/963路

    拍卖公告

    成交记录

    贷款计算

    • 贷款类型

    • 起拍价

      万元

    • 贷款比例

    • 商贷年限

    • 商贷利率

    • 还款方式

    • 开始计算

    月供(等额本息)

    小区介绍

    领秀硅谷 (本小区共有拍卖房 5套)

    查看小区详情
    • 建筑年代: 2003
    • 所在版块: 海淀区
    • 物业费用: 1.86至3.18元/平米/月
    • 总户数: 797户
    • 停车位: 充足
    • 绿化率: 40%
    领秀硅谷 法拍小区
    海淀区 西二旗中路6号三区10号楼1至3层104(领秀硅谷) 北京法拍房
    • 海淀区 西二旗中路6号三区10号楼1至3层104(领秀硅谷)
    • 海淀区 西二旗中路6号三区10号楼1至3层104(领秀硅谷)

    推荐房源

    通州区 通胡大街68号19号楼3至4层50单元3D(水仙园)复式 北京法拍房

    通州区 通胡大街68号19号楼3至4层50单元3D(水仙园)复式

    三室两厅-175.36/㎡ 480.45万
    丰台区 南顶路281号6层3单元605(城市时尚家园) 北京法拍房

    丰台区 南顶路281号6层3单元605(城市时尚家园)

    三室一厅-161.57/㎡ 520.00万
    石景山区 苹果园一区28号楼1层112号 北京法拍房

    石景山区 苹果园一区28号楼1层112号

    两室一厅-80.07/㎡ 231.16万
    大兴区 黄村镇兴华园8号楼13层1303(兴华园) 北京法拍房

    大兴区 黄村镇兴华园8号楼13层1303(兴华园)

    两室一厅-113.54/㎡ 262.50万
  • 孙佃

    法拍经验:5年

  • 电话咨询
  • 在线咨询
  • 用户注册

    立即注册

    找回密码

    提交

    房源点评

    提交