• 搜索历史
清空历史搜索
开始找房
客服电话:15810997900
密云区 彩虹园小区3号楼6层1单元601
  • 密云区 彩虹园小区3号楼6层1单元601
  • 密云区 彩虹园小区3号楼6层1单元601
  • 密云区 彩虹园小区3号楼6层1单元601
  • 密云区 彩虹园小区3号楼6层1单元601
  • 关注
    分享
    复制成功

    密云区 彩虹园小区3号楼6层1单元601

  • 起拍价:140.00万
  • 市场价:170万
  • *** 人报名
  • 1077人围观
  • 开拍截止时间: 成交价:140.00万元
    结束时间: 2022-10-25 10:00
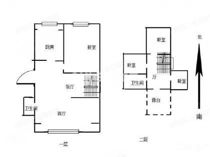
  • 四室两厅

    6层/共7层

  • 南北

    住宅

  • 121.23㎡

    2011年

  • 拍卖形式: 45
  • 保证金: 28万
  • 拍卖编号: J1415
  • 拍卖阶段: 一拍
  • 小区名称: 彩虹园小区
  • 其他: >

    税费: 税费计算、房贷计算、首付成数...>

    开拍时间: 2022-10-24 10:00:00

    房源情况

    周边情况交通出行拍卖公告欠费瑕疵成交记录

    小区介绍小区详情 >

    彩虹园小区 (本小区共有拍卖房 4套)

    彩虹园小区 法拍小区
    建筑年代:2011
    物业费用:不详
    总户数:不详
    停车位:不详
    绿化率:32%
    您的位置:金铂顺昌房拍网 > 房源列表 >密云区 彩虹园小区3号楼6层1单元601

    密云区 彩虹园小区3号楼6层1单元601

    预约看房
    关注房源

    拍卖编号: J1415

    密云区 彩虹园小区3号楼6层1单元601 北京法拍房
    • 密云区 彩虹园小区3号楼6层1单元601
    • 密云区 彩虹园小区3号楼6层1单元601
    • 密云区 彩虹园小区3号楼6层1单元601
    • 密云区 彩虹园小区3号楼6层1单元601
    • 起拍价:

      140.00

    • 市场价: 170万
    • 单价: 11570.25元/㎡
    • 差价: 30万
    • 捡漏指数:
    • 保证金: 28万
    • 四室两厅

      6层/共7层

    • 南北

      住宅

    • 121.23㎡ 提示

      2011年

    王井左 法拍专员

    法拍服务从业经验年

    在线咨询
    15810997900
    开拍截止时间: 成交价:140.00万元
    结束时间: 2022-10-25 10:00
    开拍时间: 2022-10-24 10:00:00
    *** 人报名
    1077人围观

    法拍专员

    房源信息

    基本信息

    • 小区名称:彩虹园小区
    • 所在区域:密云区
    • 户型结构:不祥
    • 电梯情况:不详
    • 装修情况:不祥
    • 供暖情况:不祥
    • 车位情况:不详
    • 物业情况:北京居安家园物业管理公司

    拍卖信息

    • 拍卖阶段:一拍
    • 产权证号: ***
    • 房屋用途: ***
    • 租赁情况: ***
    • 抵押情况: ***
    • 查封情况: ***

    欠费及瑕疵

    注册登录可看立即注册

    房源特色

    房源标签
      \
    交通出行

    拍卖公告

    成交记录

    贷款计算

    • 贷款类型

    • 起拍价

      万元

    • 贷款比例

    • 商贷年限

    • 商贷利率

    • 还款方式

    • 开始计算

    月供(等额本息)

    小区介绍

    彩虹园小区 (本小区共有拍卖房 4套)

    查看小区详情
    • 建筑年代: 2011
    • 所在版块: 密云区
    • 物业费用: 不详
    • 总户数: 不详
    • 停车位: 不详
    • 绿化率: 32%
    彩虹园小区 法拍小区
    密云区 彩虹园小区3号楼6层1单元601 北京法拍房
    • 密云区 彩虹园小区3号楼6层1单元601
    • 密云区 彩虹园小区3号楼6层1单元601
    • 密云区 彩虹园小区3号楼6层1单元601
    • 密云区 彩虹园小区3号楼6层1单元601

    推荐房源

    朝阳区 八里庄北里129号院4号楼14层2单元1401(保利东郡) 北京法拍房

    朝阳区 八里庄北里129号院4号楼14层2单元1401(保利东郡)

    五室两厅-322.67/㎡ 1995.00万
    海淀区 东钓鱼台7号院2号楼3层1单元302室 北京法拍房

    海淀区 东钓鱼台7号院2号楼3层1单元302室

    三室两厅-318.83/㎡ 2821.00万
    通州区 颐瑞东里140号楼15层1503(加州小镇) 北京法拍房

    通州区 颐瑞东里140号楼15层1503(加州小镇)

    两室两厅-93.18/㎡ 201.80万
    朝阳区 广渠门外大街三号院10号楼13层1603(富力城C区) 北京法拍房

    朝阳区 广渠门外大街三号院10号楼13层1603(富力城C区)

    四室两厅-226.75/㎡ 1406.00万
  • 王井左

    法拍经验:年

  • 电话咨询
  • 在线咨询
  • 用户注册

    立即注册

    找回密码

    提交

    房源点评

    提交