• 搜索历史
清空历史搜索
开始找房
客服电话:15810997900
石景山区 老山东里25号楼2层6号(老山东里)
  • 石景山区 老山东里25号楼2层6号(老山东里)
  • 石景山区 老山东里25号楼2层6号(老山东里)
  • 关注
    分享
    复制成功

    石景山区 老山东里25号楼2层6号(老山东里)

  • 起拍价:325.62万
  • 市场价:400万
  • *** 人报名
  • 2271人围观
  • 开拍截止时间: 拍卖已撤回
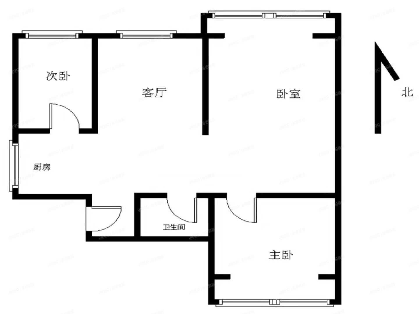
  • 三室一厅

    2层/共6层

  • 南北

    住宅

  • 91.29㎡

    1984年

  • 拍卖形式: 45
  • 保证金: 65万
  • 拍卖编号: T6669
  • 拍卖阶段: 一拍
  • 小区名称: 老山东里
  • 其他: >

    税费: 税费计算、房贷计算、首付成数...>

    开拍时间: 2021-12-20 12:00:00

    房源情况

    周边情况交通出行拍卖公告欠费瑕疵成交记录
    石景山第二实验小学,石景山实验中学石景山京西分院,北京大学首钢医院大田便民蔬果超市,万达家乐福

    小区介绍小区详情 >

    老山东里 (本小区共有拍卖房 4套)

    老山东里 法拍小区
    建筑年代:1999
    物业费用:0.64至1.7元/平米/月
    总户数:4217户
    停车位:不详
    绿化率:不详
    您的位置:金铂顺昌房拍网 > 房源列表 >石景山区 老山东里25号楼2层6号(老山东里)

    石景山区 老山东里25号楼2层6号(老山东里)

    预约看房
    关注房源

    拍卖编号: T6669

    石景山区 老山东里25号楼2层6号(老山东里) 北京法拍房
    • 石景山区 老山东里25号楼2层6号(老山东里)
    • 石景山区 老山东里25号楼2层6号(老山东里)
    • 起拍价:

      325.62

    • 市场价: 400万
    • 单价: 35714.29元/㎡
    • 差价: 75万
    • 捡漏指数:
    • 保证金: 65万
    • 三室一厅

      2层/共6层

    • 南北

      住宅

    • 91.29㎡ 提示

      1984年

    陈瑶松 法拍专员

    法拍服务从业经验年

    在线咨询
    15810997900
    开拍截止时间: 拍卖已撤回
    开拍时间: 2021-12-20 12:00:00
    *** 人报名
    2271人围观

    法拍专员

    房源信息

    基本信息

    • 小区名称:老山东里
    • 所在区域:石景山区
    • 户型结构:三室一厅
    • 电梯情况:不详
    • 装修情况:简装
    • 供暖情况:集中供暖
    • 车位情况:小区停车困难
    • 物业情况:北京首钢物业管理有限公司

    拍卖信息

    • 拍卖阶段:一拍
    • 产权证号: ***
    • 房屋用途: ***
    • 租赁情况: ***
    • 抵押情况: ***
    • 查封情况: ***

    欠费及瑕疵

    注册登录可看立即注册

    房源特色

    房源标签
      \
    交通出行
    地铁1号线八角游乐园898米

    拍卖公告

    成交记录

    贷款计算

    • 贷款类型

    • 起拍价

      万元

    • 贷款比例

    • 商贷年限

    • 商贷利率

    • 还款方式

    • 开始计算

    月供(等额本息)

    小区介绍

    老山东里 (本小区共有拍卖房 4套)

    查看小区详情
    • 建筑年代: 1999
    • 所在版块: 石景山区
    • 物业费用: 0.64至1.7元/平米/月
    • 总户数: 4217户
    • 停车位: 不详
    • 绿化率: 不详
    老山东里 法拍小区
    石景山区 老山东里25号楼2层6号(老山东里) 北京法拍房
    • 石景山区 老山东里25号楼2层6号(老山东里)
    • 石景山区 老山东里25号楼2层6号(老山东里)

    推荐房源

    海淀区 万柳华府龙园10号楼1层2单元1018号、车位及储藏间 北京法拍房

    海淀区 万柳华府龙园10号楼1层2单元1018号、车位及储藏间

    三室两厅-274.82/㎡ 4052.24万
    昌平区 昌平镇昌盛园小区二区8号楼6层2单元12 北京法拍房

    昌平区 昌平镇昌盛园小区二区8号楼6层2单元12

    三室两厅-143.24/㎡ 295.20万
    通州区 通胡大街68号19号楼3至4层50单元3D(水仙园)复式 北京法拍房

    通州区 通胡大街68号19号楼3至4层50单元3D(水仙园)复式

    三室两厅-175.36/㎡ 480.45万
    丰台区 南顶路281号6层3单元605(城市时尚家园) 北京法拍房

    丰台区 南顶路281号6层3单元605(城市时尚家园)

    三室一厅-161.57/㎡ 520.00万
  • 陈瑶松

    法拍经验:年

  • 电话咨询
  • 在线咨询
  • 用户注册

    立即注册

    找回密码

    提交

    房源点评

    提交