丰台区 丰葆路98号院二区4号楼-2至3层102(中海九号公馆),北京法拍房-金铂顺昌房拍网
  • 搜索历史
清空历史搜索
开始找房
客服电话:15810997900
丰台区 丰葆路98号院二区4号楼-2至3层102(中海九号公馆)
  • 丰台区 丰葆路98号院二区4号楼-2至3层102(中海九号公馆)
  • 丰台区 丰葆路98号院二区4号楼-2至3层102(中海九号公馆)
  • 丰台区 丰葆路98号院二区4号楼-2至3层102(中海九号公馆)
  • 关注
    分享
    复制成功

    丰台区 丰葆路98号院二区4号楼-2至3层102(中海九号公馆)

  • 起拍价:2350.00万
  • 市场价:3200万
  • *** 人报名
  • 1427人围观
  • 开拍截止时间: 拍卖已暂缓
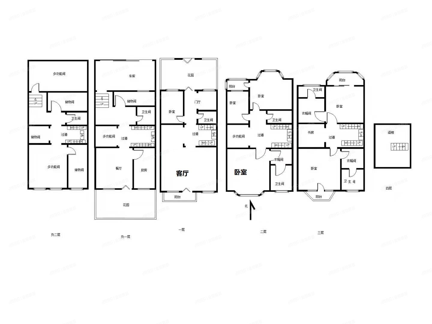
  • 六室三厅

    -1层/共4层

  • 南北

    住宅

  • 408.06㎡

    2010年

  • 拍卖形式: 45
  • 保证金: 470万
  • 拍卖编号: J5851
  • 拍卖阶段: 二拍
  • 小区名称: 中海九号公馆
  • 其他: >

    税费: 税费计算、房贷计算、首付成数...>

    开拍时间: 2021-01-11 10:00:00

    房源情况

    周边情况交通出行拍卖公告欠费瑕疵成交记录

    小区介绍小区详情 >

    中海九号公馆 (本小区共有拍卖房 23套)

    中海九号公馆 法拍小区
    建筑年代:2010
    物业费用:4.68至4.88元/平米/月
    总户数:1173户
    停车位:充足
    绿化率:30%
    您的位置:金铂顺昌房拍网 > 房源列表 >丰台区 丰葆路98号院二区4号楼-2至3层102(中海九号公馆)

    丰台区 丰葆路98号院二区4号楼-2至3层102(中海九号公馆)

    预约看房
    关注房源

    拍卖编号: J5851

    丰台区 丰葆路98号院二区4号楼-2至3层102(中海九号公馆) 北京法拍房
    • 丰台区 丰葆路98号院二区4号楼-2至3层102(中海九号公馆)
    • 丰台区 丰葆路98号院二区4号楼-2至3层102(中海九号公馆)
    • 丰台区 丰葆路98号院二区4号楼-2至3层102(中海九号公馆)
    自由购
    • 起拍价:

      2350.00

    • 市场价: 3200万
    • 单价: 57598.04元/㎡
    • 差价: 850万
    • 捡漏指数:
    • 保证金: 470万
    • 六室三厅

      -1层/共4层

    • 南北

      住宅

    • 408.06㎡ 提示

      2010年

    武家玉 法拍专员

    法拍服务从业经验年

    在线咨询
    15810997900
    开拍截止时间: 拍卖已暂缓
    开拍时间: 2021-01-11 10:00:00
    *** 人报名
    1427人围观

    法拍专员

    房源信息

    基本信息

    • 小区名称:中海九号公馆
    • 所在区域:丰台区
    • 户型结构:六室三厅
    • 电梯情况:不详
    • 装修情况:简装
    • 供暖情况:集中供暖
    • 车位情况:充足
    • 物业情况:北京中海物业管理有限公司中海金石苑分公司

    拍卖信息

    • 拍卖阶段:二拍
    • 产权证号: ***
    • 房屋用途: ***
    • 租赁情况: ***
    • 抵押情况: ***
    • 查封情况: ***

    欠费及瑕疵

    注册登录可看立即注册

    房源特色

    房源标签
      \
    交通出行

    拍卖公告

    成交记录

    贷款计算

    • 贷款类型

    • 起拍价

      万元

    • 贷款比例

    • 商贷年限

    • 商贷利率

    • 还款方式

    • 开始计算

    月供(等额本息)

    小区介绍

    中海九号公馆 (本小区共有拍卖房 23套)

    查看小区详情
    • 建筑年代: 2010
    • 所在版块: 丰台区
    • 物业费用: 4.68至4.88元/平米/月
    • 总户数: 1173户
    • 停车位: 充足
    • 绿化率: 30%
    中海九号公馆 法拍小区
    丰台区 丰葆路98号院二区4号楼-2至3层102(中海九号公馆) 北京法拍房
    • 丰台区 丰葆路98号院二区4号楼-2至3层102(中海九号公馆)
    • 丰台区 丰葆路98号院二区4号楼-2至3层102(中海九号公馆)
    • 丰台区 丰葆路98号院二区4号楼-2至3层102(中海九号公馆)

    推荐房源

    丰台区 南顶路281号6层3单元605(城市时尚家园) 北京法拍房

    丰台区 南顶路281号6层3单元605(城市时尚家园)

    三室一厅-161.57/㎡ 520.00万
    石景山区 苹果园一区28号楼1层112号 北京法拍房

    石景山区 苹果园一区28号楼1层112号

    两室一厅-80.07/㎡ 231.16万
    大兴区 黄村镇兴华园8号楼13层1303(兴华园) 北京法拍房

    大兴区 黄村镇兴华园8号楼13层1303(兴华园)

    两室一厅-113.54/㎡ 262.50万
    大兴区 乐园路22号院1号楼9至10层3单元902室(金地仰山) 北京法拍房

    大兴区 乐园路22号院1号楼9至10层3单元902室(金地仰山)

    三室两厅-177.43/㎡ 674.10万
  • 武家玉

    法拍经验:年

  • 电话咨询
  • 在线咨询
  • 用户注册

    立即注册

    找回密码

    提交

    房源点评

    提交