朝阳区 和平街十三区23号楼2层1单元121,北京法拍房-金铂顺昌房拍网
  • 搜索历史
清空历史搜索
开始找房
客服电话:15810997900
朝阳区 和平街十三区23号楼2层1单元121
  • 朝阳区   和平街十三区23号楼2层1单元121
  • 朝阳区   和平街十三区23号楼2层1单元121
  • 朝阳区   和平街十三区23号楼2层1单元121
  • 朝阳区   和平街十三区23号楼2层1单元121
  • 朝阳区   和平街十三区23号楼2层1单元121
  • 朝阳区   和平街十三区23号楼2层1单元121
  • 朝阳区   和平街十三区23号楼2层1单元121
  • 朝阳区   和平街十三区23号楼2层1单元121
  • 朝阳区   和平街十三区23号楼2层1单元121
  • 关注
    分享
    复制成功

    朝阳区 和平街十三区23号楼2层1单元121

  • 起拍价:334.26万
  • 市场价:510万
  • *** 人报名
  • 1188人围观
  • 开拍截止时间: 拍卖已撤回
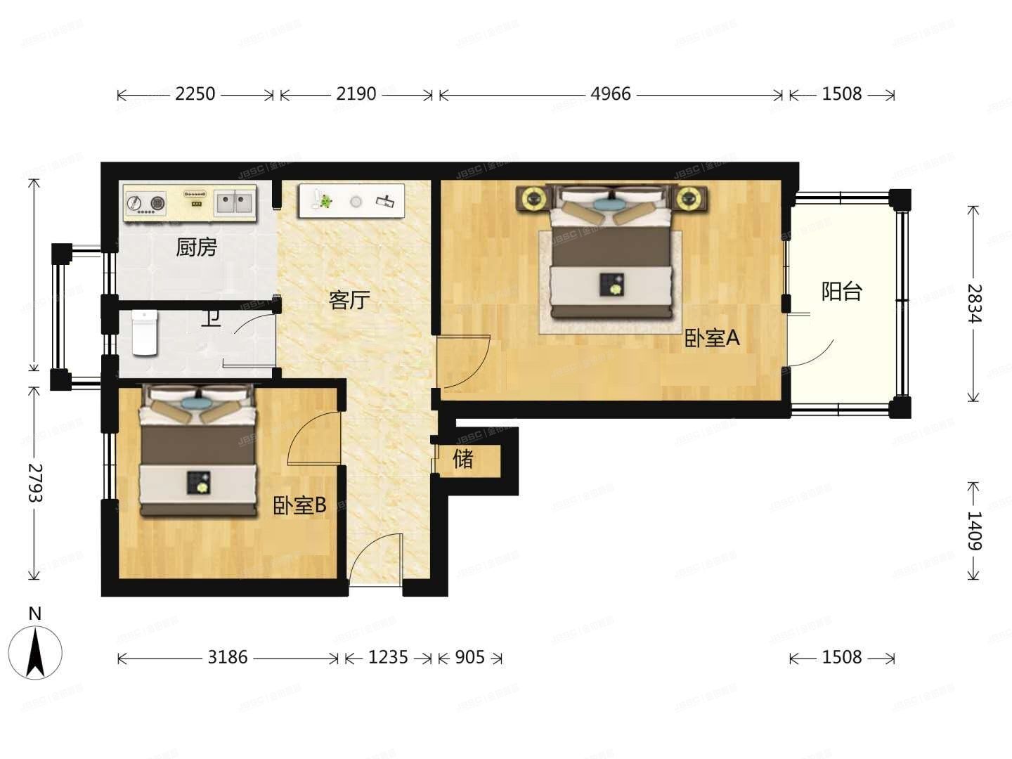
  • 两室一厅

    2层/共5层

  • 东西

    住宅

  • 66.44㎡

    1958年

  • 拍卖形式: 45
  • 保证金: 51万
  • 拍卖编号: T5836
  • 拍卖阶段: 一拍
  • 小区名称: 和平街十三区
  • 其他: >

    税费: 税费计算、房贷计算、首付成数...>

    开拍时间: 2020-11-16 10:00:00

    房源情况

    周边情况交通出行拍卖公告欠费瑕疵成交记录
    朝阳区师范附属小学,和平里一中北京市第六医院,东城区口腔医院安贞社区公园,雍和宫

    小区介绍小区详情 >

    和平街十三区 (本小区共有拍卖房 1套)

    和平街十三区 法拍小区
    建筑年代:1958
    物业费用:1.1至2.7元/平米/月
    总户数:2617户
    停车位:
    绿化率:
    您的位置:金铂顺昌房拍网 > 房源列表 >朝阳区 和平街十三区23号楼2层1单元121

    朝阳区 和平街十三区23号楼2层1单元121

    预约看房
    关注房源

    拍卖编号: T5836

    朝阳区   和平街十三区23号楼2层1单元121 北京法拍房
    • 朝阳区   和平街十三区23号楼2层1单元121
    • 朝阳区   和平街十三区23号楼2层1单元121
    • 朝阳区   和平街十三区23号楼2层1单元121
    • 朝阳区   和平街十三区23号楼2层1单元121
    • 朝阳区   和平街十三区23号楼2层1单元121
    • 朝阳区   和平街十三区23号楼2层1单元121
    • 朝阳区   和平街十三区23号楼2层1单元121
    • 朝阳区   和平街十三区23号楼2层1单元121
    • 朝阳区   和平街十三区23号楼2层1单元121
    • 起拍价:

      334.26

    • 市场价: 510万
    • 单价: 50606.06元/㎡
    • 差价: 176万
    • 捡漏指数:
    • 保证金: 51万
    • 两室一厅

      2层/共5层

    • 东西

      住宅

    • 66.44㎡ 提示

      1958年

    武家玉 法拍专员

    法拍服务从业经验年

    在线咨询
    15810997900
    开拍截止时间: 拍卖已撤回
    开拍时间: 2020-11-16 10:00:00
    *** 人报名
    1188人围观

    法拍专员

    房源信息

    基本信息

    • 小区名称:和平街十三区
    • 所在区域:
    • 户型结构:两室一厅
    • 电梯情况:不详
    • 装修情况:简装
    • 供暖情况:集中供暖
    • 车位情况:地上车位
    • 物业情况:单位自管物业

    拍卖信息

    • 拍卖阶段:一拍
    • 产权证号: ***
    • 房屋用途: ***
    • 租赁情况: ***
    • 抵押情况: ***
    • 查封情况: ***

    欠费及瑕疵

    注册登录可看立即注册

    房源特色

    房源标签
      \
    交通出行
    13号线光熙门站,5号线和平西桥站

    拍卖公告

    成交记录

    贷款计算

    • 贷款类型

    • 起拍价

      万元

    • 贷款比例

    • 商贷年限

    • 商贷利率

    • 还款方式

    • 开始计算

    月供(等额本息)

    小区介绍

    和平街十三区 (本小区共有拍卖房 1套)

    查看小区详情
    • 建筑年代: 1958
    • 所在版块:
    • 物业费用: 1.1至2.7元/平米/月
    • 总户数: 2617户
    • 停车位:
    • 绿化率:
    和平街十三区 法拍小区
    朝阳区   和平街十三区23号楼2层1单元121 北京法拍房
    • 朝阳区   和平街十三区23号楼2层1单元121
    • 朝阳区   和平街十三区23号楼2层1单元121
    • 朝阳区   和平街十三区23号楼2层1单元121
    • 朝阳区   和平街十三区23号楼2层1单元121
    • 朝阳区   和平街十三区23号楼2层1单元121
    • 朝阳区   和平街十三区23号楼2层1单元121
    • 朝阳区   和平街十三区23号楼2层1单元121
    • 朝阳区   和平街十三区23号楼2层1单元121
    • 朝阳区   和平街十三区23号楼2层1单元121

    推荐房源

    通州区 通胡大街68号19号楼3至4层50单元3D(水仙园)复式 北京法拍房

    通州区 通胡大街68号19号楼3至4层50单元3D(水仙园)复式

    三室两厅-175.36/㎡ 480.45万
    丰台区 南顶路281号6层3单元605(城市时尚家园) 北京法拍房

    丰台区 南顶路281号6层3单元605(城市时尚家园)

    三室一厅-161.57/㎡ 520.00万
    石景山区 苹果园一区28号楼1层112号 北京法拍房

    石景山区 苹果园一区28号楼1层112号

    两室一厅-80.07/㎡ 231.16万
    大兴区 黄村镇兴华园8号楼13层1303(兴华园) 北京法拍房

    大兴区 黄村镇兴华园8号楼13层1303(兴华园)

    两室一厅-113.54/㎡ 262.50万
  • 武家玉

    法拍经验:年

  • 电话咨询
  • 在线咨询
  • 用户注册

    立即注册

    找回密码

    提交

    房源点评

    提交