西城区 新华里16号院2号楼14层1407号(京桥国际公馆),北京法拍房-金铂顺昌房拍网
  • 搜索历史
清空历史搜索
开始找房
客服电话:15810997900
西城区 新华里16号院2号楼14层1407号(京桥国际公馆)
  • 西城区 新华里16号院2号楼14层1407号(京桥国际公馆)
  • 西城区 新华里16号院2号楼14层1407号(京桥国际公馆)
  • 西城区 新华里16号院2号楼14层1407号(京桥国际公馆)
  • 西城区 新华里16号院2号楼14层1407号(京桥国际公馆)
  • 西城区 新华里16号院2号楼14层1407号(京桥国际公馆)
  • 关注
    分享
    复制成功

    西城区 新华里16号院2号楼14层1407号(京桥国际公馆)

  • 起拍价:694.14万
  • 市场价:980万
  • *** 人报名
  • 1498人围观
  • 开拍截止时间: 拍卖已结束
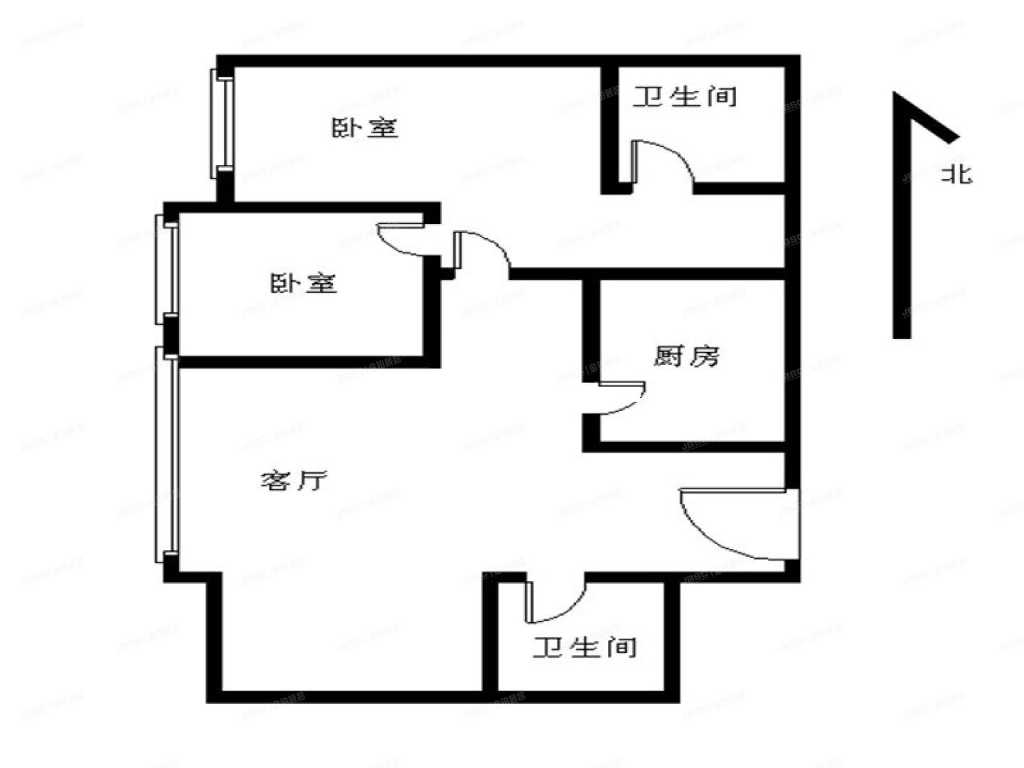
  • 两室两厅

    14层/共16层

  • 西

    国有资产

  • 115.33㎡

    2007年

  • 拍卖形式: 46
  • 保证金: 30万
  • 拍卖编号: C5801
  • 拍卖阶段: 一拍
  • 小区名称: 京桥国际公馆
  • 其他: >

    税费: 税费计算、房贷计算、首付成数...>

    开拍时间: 2020-11-06 17:00:00

    房源情况

    周边情况交通出行拍卖公告欠费瑕疵成交记录
    进步小学北京大学人民医院,北京武警第二医院平价超市,水果超市

    小区介绍小区详情 >

    京桥国际公馆 (本小区共有拍卖房 14套)

    京桥国际公馆 法拍小区
    建筑年代:2007
    物业费用:不详
    总户数:106户
    停车位:充足
    绿化率:30.10%
    您的位置:金铂顺昌房拍网 > 房源列表 >西城区 新华里16号院2号楼14层1407号(京桥国际公馆)

    西城区 新华里16号院2号楼14层1407号(京桥国际公馆)

    预约看房
    关注房源

    拍卖编号: C5801

    西城区 新华里16号院2号楼14层1407号(京桥国际公馆) 北京法拍房
    • 西城区 新华里16号院2号楼14层1407号(京桥国际公馆)
    • 西城区 新华里16号院2号楼14层1407号(京桥国际公馆)
    • 西城区 新华里16号院2号楼14层1407号(京桥国际公馆)
    • 西城区 新华里16号院2号楼14层1407号(京桥国际公馆)
    • 西城区 新华里16号院2号楼14层1407号(京桥国际公馆)
    • 起拍价:

      694.14

    • 市场价: 980万
    • 单价: 60347.83元/㎡
    • 差价: 286万
    • 捡漏指数:
    • 保证金: 30万
    • 两室两厅

      14层/共16层

    • 西

      国有资产

    • 115.33㎡ 提示

      2007年

    武家玉 法拍专员

    法拍服务从业经验年

    在线咨询
    15810997900
    开拍截止时间: 拍卖已结束
    开拍时间: 2020-11-06 17:00:00
    *** 人报名
    1498人围观

    法拍专员

    房源信息

    基本信息

    • 小区名称:京桥国际公馆
    • 所在区域:西城区
    • 户型结构:两室两厅
    • 电梯情况:3梯8户
    • 装修情况:精装
    • 供暖情况:集中供暖
    • 车位情况:充足
    • 物业情况:中实杰肯道夫物业管理公司

    拍卖信息

    • 拍卖阶段:一拍
    • 产权证号: ***
    • 房屋用途: ***
    • 租赁情况: ***
    • 抵押情况: ***
    • 查封情况: ***

    欠费及瑕疵

    注册登录可看立即注册

    房源特色

    房源标签
      \
    交通出行
    车公庄,地铁2号线,6号线518米

    拍卖公告

    成交记录

    贷款计算

    • 贷款类型

    • 起拍价

      万元

    • 贷款比例

    • 商贷年限

    • 商贷利率

    • 还款方式

    • 开始计算

    月供(等额本息)

    小区介绍

    京桥国际公馆 (本小区共有拍卖房 14套)

    查看小区详情
    • 建筑年代: 2007
    • 所在版块: 西城区
    • 物业费用: 不详
    • 总户数: 106户
    • 停车位: 充足
    • 绿化率: 30.10%
    京桥国际公馆 法拍小区
    西城区 新华里16号院2号楼14层1407号(京桥国际公馆) 北京法拍房
    • 西城区 新华里16号院2号楼14层1407号(京桥国际公馆)
    • 西城区 新华里16号院2号楼14层1407号(京桥国际公馆)
    • 西城区 新华里16号院2号楼14层1407号(京桥国际公馆)
    • 西城区 新华里16号院2号楼14层1407号(京桥国际公馆)
    • 西城区 新华里16号院2号楼14层1407号(京桥国际公馆)

    推荐房源

    丰台区 南顶路281号6层3单元605(城市时尚家园) 北京法拍房

    丰台区 南顶路281号6层3单元605(城市时尚家园)

    三室一厅-161.57/㎡ 520.00万
    石景山区 苹果园一区28号楼1层112号 北京法拍房

    石景山区 苹果园一区28号楼1层112号

    两室一厅-80.07/㎡ 231.16万
    大兴区 黄村镇兴华园8号楼13层1303(兴华园) 北京法拍房

    大兴区 黄村镇兴华园8号楼13层1303(兴华园)

    两室一厅-113.54/㎡ 262.50万
    大兴区 乐园路22号院1号楼9至10层3单元902室(金地仰山) 北京法拍房

    大兴区 乐园路22号院1号楼9至10层3单元902室(金地仰山)

    三室两厅-177.43/㎡ 674.10万
  • 武家玉

    法拍经验:年

  • 电话咨询
  • 在线咨询
  • 用户注册

    立即注册

    找回密码

    提交

    房源点评

    提交