• 搜索历史
清空历史搜索
开始找房
客服电话:15810997900
西城区 西直门南小街141号楼16层1602室+车位(西派国际公寓)
  • 西城区 西直门南小街141号楼16层1602室+车位(西派国际公寓)
  • 西城区 西直门南小街141号楼16层1602室+车位(西派国际公寓)
  • 西城区 西直门南小街141号楼16层1602室+车位(西派国际公寓)
  • 西城区 西直门南小街141号楼16层1602室+车位(西派国际公寓)
  • 西城区 西直门南小街141号楼16层1602室+车位(西派国际公寓)
  • 关注
    分享
    复制成功

    西城区 西直门南小街141号楼16层1602室+车位(西派国际公寓)

  • 起拍价:1203.67万
  • 市场价:1500万
  • *** 人报名
  • 2703人围观
  • 开拍截止时间: 拍卖已结束
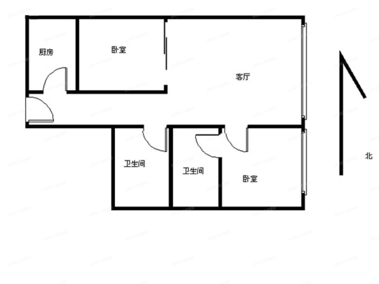
  • 两室一厅

    16层/共17层

  • 国有资产

  • 138.01㎡

    2004年

  • 拍卖形式: 46
  • 保证金: 267.00万
  • 拍卖编号: C5676
  • 拍卖阶段: 一拍
  • 小区名称: 西派国际公寓
  • 其他: >

    税费: 税费计算、房贷计算、首付成数...>

    开拍时间: 2020-12-08 17:00:00

    房源情况

    周边情况交通出行拍卖公告欠费瑕疵成交记录
    黄城根小学中国医学科学院阜外医院世纪华联

    小区介绍小区详情 >

    西派国际公寓 (本小区共有拍卖房 7套)

    西派国际公寓 法拍小区
    建筑年代:2004
    物业费用:4.9
    总户数:202户
    停车位:充足
    绿化率:30%
    您的位置:金铂顺昌房拍网 > 房源列表 >西城区 西直门南小街141号楼16层1602室+车位(西派国际公寓)

    西城区 西直门南小街141号楼16层1602室+车位(西派国际公寓)

    预约看房
    关注房源

    拍卖编号: C5676

    西城区 西直门南小街141号楼16层1602室+车位(西派国际公寓) 北京法拍房
    • 西城区 西直门南小街141号楼16层1602室+车位(西派国际公寓)
    • 西城区 西直门南小街141号楼16层1602室+车位(西派国际公寓)
    • 西城区 西直门南小街141号楼16层1602室+车位(西派国际公寓)
    • 西城区 西直门南小街141号楼16层1602室+车位(西派国际公寓)
    • 西城区 西直门南小街141号楼16层1602室+车位(西派国际公寓)
    • 起拍价:

      1203.67

    • 市场价: 1500万
    • 单价: 87173.91元/㎡
    • 差价: 297万
    • 捡漏指数:
    • 保证金: 267.00万
    • 两室一厅

      16层/共17层

    • 国有资产

    • 138.01㎡ 提示

      2004年

    武家玉 法拍专员

    法拍服务从业经验年

    在线咨询
    15810997900
    开拍截止时间: 拍卖已结束
    开拍时间: 2020-12-08 17:00:00
    *** 人报名
    2703人围观

    法拍专员

    房源信息

    基本信息

    • 小区名称:西派国际公寓
    • 所在区域:西城区
    • 户型结构:两室一厅
    • 电梯情况:四梯四户
    • 装修情况:简装
    • 供暖情况:集中供暖
    • 车位情况:充足
    • 物业情况:北京金网络物业管理有限公司

    拍卖信息

    • 拍卖阶段:一拍
    • 产权证号: ***
    • 房屋用途: ***
    • 租赁情况: ***
    • 抵押情况: ***
    • 查封情况: ***

    欠费及瑕疵

    注册登录可看立即注册

    房源特色

    房源标签
      \
    交通出行
    地铁车公庄站

    拍卖公告

    成交记录

    贷款计算

    • 贷款类型

    • 起拍价

      万元

    • 贷款比例

    • 商贷年限

    • 商贷利率

    • 还款方式

    • 开始计算

    月供(等额本息)

    小区介绍

    西派国际公寓 (本小区共有拍卖房 7套)

    查看小区详情
    • 建筑年代: 2004
    • 所在版块: 西城区
    • 物业费用: 4.9
    • 总户数: 202户
    • 停车位: 充足
    • 绿化率: 30%
    西派国际公寓 法拍小区
    西城区 西直门南小街141号楼16层1602室+车位(西派国际公寓) 北京法拍房
    • 西城区 西直门南小街141号楼16层1602室+车位(西派国际公寓)
    • 西城区 西直门南小街141号楼16层1602室+车位(西派国际公寓)
    • 西城区 西直门南小街141号楼16层1602室+车位(西派国际公寓)
    • 西城区 西直门南小街141号楼16层1602室+车位(西派国际公寓)
    • 西城区 西直门南小街141号楼16层1602室+车位(西派国际公寓)

    推荐房源

    海淀区 万柳华府龙园10号楼1层2单元1018号、车位及储藏间 北京法拍房

    海淀区 万柳华府龙园10号楼1层2单元1018号、车位及储藏间

    三室两厅-274.82/㎡ 4052.24万
    昌平区 昌平镇昌盛园小区二区8号楼6层2单元12 北京法拍房

    昌平区 昌平镇昌盛园小区二区8号楼6层2单元12

    三室两厅-143.24/㎡ 295.20万
    通州区 通胡大街68号19号楼3至4层50单元3D(水仙园)复式 北京法拍房

    通州区 通胡大街68号19号楼3至4层50单元3D(水仙园)复式

    三室两厅-175.36/㎡ 480.45万
    丰台区 南顶路281号6层3单元605(城市时尚家园) 北京法拍房

    丰台区 南顶路281号6层3单元605(城市时尚家园)

    三室一厅-161.57/㎡ 520.00万
  • 武家玉

    法拍经验:年

  • 电话咨询
  • 在线咨询
  • 用户注册

    立即注册

    找回密码

    提交

    房源点评

    提交