• 搜索历史
清空历史搜索
开始找房
客服电话:15810997900
丰台区 中体奥林匹克花园20号楼1至3层05
  • 丰台区 中体奥林匹克花园20号楼1至3层05
  • 丰台区 中体奥林匹克花园20号楼1至3层05
  • 丰台区 中体奥林匹克花园20号楼1至3层05
  • 丰台区 中体奥林匹克花园20号楼1至3层05
  • 丰台区 中体奥林匹克花园20号楼1至3层05
  • 关注
    分享
    复制成功

    丰台区 中体奥林匹克花园20号楼1至3层05

  • 起拍价:712.00万
  • 市场价:980万
  • *** 人报名
  • 2441人围观
  • 开拍截止时间: 成交价:862.00万元
    结束时间: 2022-08-19 10:54
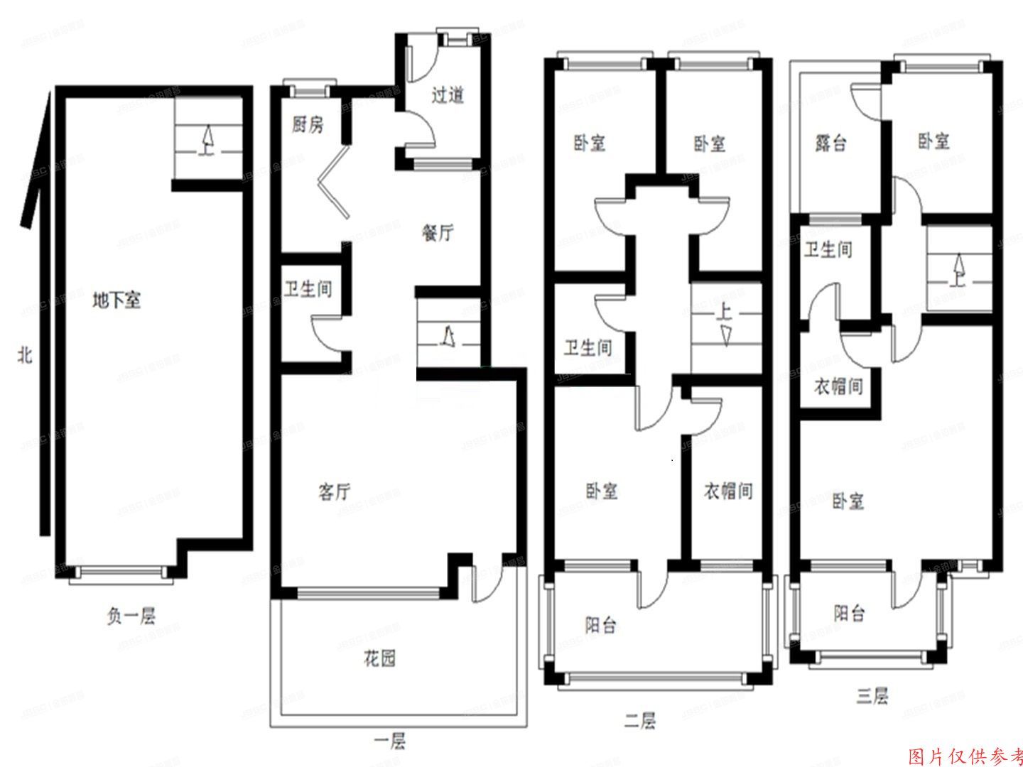
  • 四室两厅

    1层/共3层

  • 南北

    别墅

  • 241.43㎡

    2007年

  • 拍卖形式: 45
  • 保证金: 72万
  • 拍卖编号: T1756
  • 拍卖阶段: 一拍
  • 小区名称: 中体奥林匹克花园一期
  • 其他: >

    税费: 税费计算、房贷计算、首付成数...>

    开拍时间: 2022-08-18 10:00:00

    房源情况

    周边情况交通出行拍卖公告欠费瑕疵成交记录

    小区介绍小区详情 >

    中体奥林匹克花园一期 (本小区共有拍卖房 5套)

    中体奥林匹克花园一期 法拍小区
    建筑年代:2007
    物业费用:2.8
    总户数:264户
    停车位:充足
    绿化率:50%
    您的位置:金铂顺昌房拍网 > 房源列表 >丰台区 中体奥林匹克花园20号楼1至3层05

    丰台区 中体奥林匹克花园20号楼1至3层05

    预约看房
    关注房源

    拍卖编号: T1756

    丰台区 中体奥林匹克花园20号楼1至3层05 北京法拍房
    • 丰台区 中体奥林匹克花园20号楼1至3层05
    • 丰台区 中体奥林匹克花园20号楼1至3层05
    • 丰台区 中体奥林匹克花园20号楼1至3层05
    • 丰台区 中体奥林匹克花园20号楼1至3层05
    • 丰台区 中体奥林匹克花园20号楼1至3层05
    • 起拍价:

      712.00

    • 市场价: 980万
    • 单价: 29543.57元/㎡
    • 差价: 268万
    • 捡漏指数:
    • 保证金: 72万
    • 四室两厅

      1层/共3层

    • 南北

      别墅

    • 241.43㎡ 提示

      2007年

    刘财 法拍专员

    法拍服务从业经验年

    在线咨询
    15810997900
    开拍截止时间: 成交价:862.00万元
    结束时间: 2022-08-19 10:54
    开拍时间: 2022-08-18 10:00:00
    *** 人报名
    2441人围观

    法拍专员

    房源信息

    基本信息

    • 小区名称:中体奥林匹克花园一期
    • 所在区域:丰台区
    • 户型结构:不祥
    • 电梯情况:不详
    • 装修情况:不祥
    • 供暖情况:不祥
    • 车位情况:充足
    • 物业情况:北京中体奥园物业管理有限公司

    拍卖信息

    • 拍卖阶段:一拍
    • 产权证号: ***
    • 房屋用途: ***
    • 租赁情况: ***
    • 抵押情况: ***
    • 查封情况: ***

    欠费及瑕疵

    注册登录可看立即注册

    房源特色

    房源标签
      \
    交通出行

    拍卖公告

    成交记录

    贷款计算

    • 贷款类型

    • 起拍价

      万元

    • 贷款比例

    • 商贷年限

    • 商贷利率

    • 还款方式

    • 开始计算

    月供(等额本息)

    小区介绍

    中体奥林匹克花园一期 (本小区共有拍卖房 5套)

    查看小区详情
    • 建筑年代: 2007
    • 所在版块: 丰台区
    • 物业费用: 2.8
    • 总户数: 264户
    • 停车位: 充足
    • 绿化率: 50%
    中体奥林匹克花园一期 法拍小区
    丰台区 中体奥林匹克花园20号楼1至3层05 北京法拍房
    • 丰台区 中体奥林匹克花园20号楼1至3层05
    • 丰台区 中体奥林匹克花园20号楼1至3层05
    • 丰台区 中体奥林匹克花园20号楼1至3层05
    • 丰台区 中体奥林匹克花园20号楼1至3层05
    • 丰台区 中体奥林匹克花园20号楼1至3层05

    推荐房源

    海淀区 羊坊店东路19号2号楼2层203室(海天中心) 北京法拍房

    海淀区 羊坊店东路19号2号楼2层203室(海天中心)

    三室两厅-148.65/㎡ 931.00万
    朝阳区 广渠门外大街三号院10号楼13层1603(富力城C区) 北京法拍房

    朝阳区 广渠门外大街三号院10号楼13层1603(富力城C区)

    四室两厅-226.75/㎡ 1406.00万
    房山区-良乡 西潞东里甲1号楼5层1-502(西潞东里小区) 北京法拍房

    房山区-良乡 西潞东里甲1号楼5层1-502(西潞东里小区)

    三室两厅-157.08/㎡ 177.00万
    大兴区 郁花园一里42号楼6层2-601(郁花园一里) 北京法拍房

    大兴区 郁花园一里42号楼6层2-601(郁花园一里)

    三室两厅-197.56/㎡ 485.00万
  • 刘财

    法拍经验:年

  • 电话咨询
  • 在线咨询
  • 用户注册

    立即注册

    找回密码

    提交

    房源点评

    提交