朝阳区 公园1872 218号楼15层1511号,北京法拍房-金铂顺昌房拍网
  • 搜索历史
清空历史搜索
开始找房
客服电话:15810997900
朝阳区 公园1872 218号楼15层1511号
  • 朝阳区 公园1872 218号楼15层1511号
  • 朝阳区 公园1872 218号楼15层1511号
  • 朝阳区 公园1872 218号楼15层1511号
  • 朝阳区 公园1872 218号楼15层1511号
  • 朝阳区 公园1872 218号楼15层1511号
  • 朝阳区 公园1872 218号楼15层1511号
  • 朝阳区 公园1872 218号楼15层1511号
  • 朝阳区 公园1872 218号楼15层1511号
  • 朝阳区 公园1872 218号楼15层1511号
  • 关注
    分享
    复制成功

    朝阳区 公园1872 218号楼15层1511号

  • 起拍价:395.22万
  • 市场价:430万
  • *** 人报名
  • 539人围观
  • 开拍截止时间: 成交价:395.22万元
    结束时间: 2022-08-23 10:03
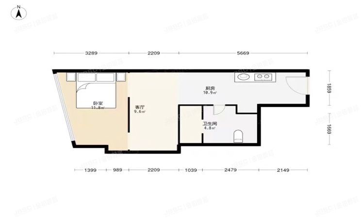
  • 一室

    15层/共21层

  • 西

    住宅

  • 65.87㎡

    2013年

  • 拍卖形式: 45
  • 保证金: 20万
  • 拍卖编号: T1313
  • 拍卖阶段: 一拍
  • 小区名称: 公园1872
  • 其他: >

    税费: 税费计算、房贷计算、首付成数...>

    开拍时间: 2022-08-22 10:00:00

    房源情况

    周边情况交通出行拍卖公告欠费瑕疵成交记录

    小区介绍小区详情 >

    公园1872 (本小区共有拍卖房 20套)

    公园1872 法拍小区
    建筑年代:2013
    物业费用:5.48元/平米·月
    总户数:2184户
    停车位:2170
    绿化率:33.70%
    您的位置:金铂顺昌房拍网 > 房源列表 >朝阳区 公园1872 218号楼15层1511号

    朝阳区 公园1872 218号楼15层1511号

    预约看房
    关注房源

    拍卖编号: T1313

    朝阳区 公园1872 218号楼15层1511号 北京法拍房
    • 朝阳区 公园1872 218号楼15层1511号
    • 朝阳区 公园1872 218号楼15层1511号
    • 朝阳区 公园1872 218号楼15层1511号
    • 朝阳区 公园1872 218号楼15层1511号
    • 朝阳区 公园1872 218号楼15层1511号
    • 朝阳区 公园1872 218号楼15层1511号
    • 朝阳区 公园1872 218号楼15层1511号
    • 朝阳区 公园1872 218号楼15层1511号
    • 朝阳区 公园1872 218号楼15层1511号
    • 起拍价:

      395.22

    • 市场价: 430万
    • 单价: 60769.23元/㎡
    • 差价: 35万
    • 捡漏指数:
    • 保证金: 20万
    • 一室

      15层/共21层

    • 西

      住宅

    • 65.87㎡ 提示

      2013年

    黄丹 法拍专员

    法拍服务从业经验年

    在线咨询
    15810997900
    开拍截止时间: 成交价:395.22万元
    结束时间: 2022-08-23 10:03
    开拍时间: 2022-08-22 10:00:00
    *** 人报名
    539人围观

    法拍专员

    房源信息

    基本信息

    • 小区名称:公园1872
    • 所在区域:朝阳区
    • 户型结构:不祥
    • 电梯情况:15/21层
    • 装修情况:不祥
    • 供暖情况:不祥
    • 车位情况:2170
    • 物业情况:南京招商局物业管理有限公司

    拍卖信息

    • 拍卖阶段:一拍
    • 产权证号: ***
    • 房屋用途: ***
    • 租赁情况: ***
    • 抵押情况: ***
    • 查封情况: ***

    欠费及瑕疵

    注册登录可看立即注册

    房源特色

    房源标签
      \
    交通出行

    拍卖公告

    成交记录

    贷款计算

    • 贷款类型

    • 起拍价

      万元

    • 贷款比例

    • 商贷年限

    • 商贷利率

    • 还款方式

    • 开始计算

    月供(等额本息)

    小区介绍

    公园1872 (本小区共有拍卖房 20套)

    查看小区详情
    • 建筑年代: 2013
    • 所在版块: 朝阳区
    • 物业费用: 5.48元/平米·月
    • 总户数: 2184户
    • 停车位: 2170
    • 绿化率: 33.70%
    公园1872 法拍小区
    朝阳区 公园1872 218号楼15层1511号 北京法拍房
    • 朝阳区 公园1872 218号楼15层1511号
    • 朝阳区 公园1872 218号楼15层1511号
    • 朝阳区 公园1872 218号楼15层1511号
    • 朝阳区 公园1872 218号楼15层1511号
    • 朝阳区 公园1872 218号楼15层1511号
    • 朝阳区 公园1872 218号楼15层1511号
    • 朝阳区 公园1872 218号楼15层1511号
    • 朝阳区 公园1872 218号楼15层1511号
    • 朝阳区 公园1872 218号楼15层1511号

    推荐房源

    丰台区 南顶路281号6层3单元605(城市时尚家园) 北京法拍房

    丰台区 南顶路281号6层3单元605(城市时尚家园)

    三室一厅-161.57/㎡ 520.00万
    大兴区 黄村镇兴华园8号楼13层1303(兴华园) 北京法拍房

    大兴区 黄村镇兴华园8号楼13层1303(兴华园)

    两室一厅-113.54/㎡ 262.50万
    大兴区 乐园路22号院1号楼9至10层3单元902室(金地仰山) 北京法拍房

    大兴区 乐园路22号院1号楼9至10层3单元902室(金地仰山)

    三室两厅-177.43/㎡ 674.10万
    海淀区 四道口路11号(四道口5号院) 北京法拍房

    海淀区 四道口路11号(四道口5号院)

    一室-6787.95/㎡ 11911.80万
  • 黄丹

    法拍经验:年

  • 电话咨询
  • 在线咨询
  • 用户注册

    立即注册

    找回密码

    提交

    房源点评

    提交