• 搜索历史
清空历史搜索
开始找房
客服电话:15810997900
房山区 长政南街8号院1号楼4层二单元402(杨庄子小区)
  • 房山区 长政南街8号院1号楼4层二单元402(杨庄子小区)
  • 房山区 长政南街8号院1号楼4层二单元402(杨庄子小区)
  • 房山区 长政南街8号院1号楼4层二单元402(杨庄子小区)
  • 房山区 长政南街8号院1号楼4层二单元402(杨庄子小区)
  • 房山区 长政南街8号院1号楼4层二单元402(杨庄子小区)
  • 关注
    分享
    复制成功

    房山区 长政南街8号院1号楼4层二单元402(杨庄子小区)

  • 起拍价:198.65万
  • 市场价:300万
  • *** 人报名
  • 1827人围观
  • 开拍截止时间: 成交价:198.65万元
    结束时间: 2022-01-21 10:00
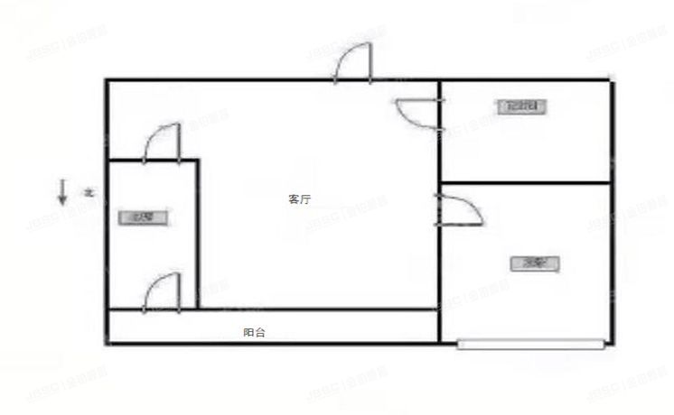
  • 两室一厅

    4层/共6层

  • 南北

    住宅

  • 68㎡

    2018年

  • 拍卖形式: 45
  • 保证金: 20万
  • 拍卖编号: J1124
  • 拍卖阶段: 一拍
  • 小区名称: 杨庄子小区
  • 其他: >

    税费: 税费计算、房贷计算、首付成数...>

    开拍时间: 2022-01-20 10:00:00

    房源情况

    周边情况交通出行拍卖公告欠费瑕疵成交记录

    小区介绍小区详情 >

    杨庄子小区 (本小区共有拍卖房 1套)

    杨庄子小区 法拍小区
    建筑年代:2018
    物业费用:1.8至2.2元/平米/月
    总户数:538户
    停车位:充足
    绿化率:35%
    您的位置:金铂顺昌房拍网 > 房源列表 >房山区 长政南街8号院1号楼4层二单元402(杨庄子小区)

    房山区 长政南街8号院1号楼4层二单元402(杨庄子小区)

    预约看房
    关注房源

    拍卖编号: J1124

    房山区 长政南街8号院1号楼4层二单元402(杨庄子小区) 北京法拍房
    • 房山区 长政南街8号院1号楼4层二单元402(杨庄子小区)
    • 房山区 长政南街8号院1号楼4层二单元402(杨庄子小区)
    • 房山区 长政南街8号院1号楼4层二单元402(杨庄子小区)
    • 房山区 长政南街8号院1号楼4层二单元402(杨庄子小区)
    • 房山区 长政南街8号院1号楼4层二单元402(杨庄子小区)
    • 起拍价:

      198.65

    • 市场价: 300万
    • 单价: 29117.65元/㎡
    • 差价: 102万
    • 捡漏指数:
    • 保证金: 20万
    • 两室一厅

      4层/共6层

    • 南北

      住宅

    • 68㎡ 提示

      2018年

    金超 法拍专员

    法拍服务从业经验8年

    在线咨询
    15810997900
    开拍截止时间: 成交价:198.65万元
    结束时间: 2022-01-21 10:00
    开拍时间: 2022-01-20 10:00:00
    *** 人报名
    1827人围观

    法拍专员

    • 金超

      在线咨询

    房源信息

    基本信息

    • 小区名称:杨庄子小区
    • 所在区域:房山区
    • 户型结构:不祥
    • 电梯情况:不详
    • 装修情况:不祥
    • 供暖情况:不祥
    • 车位情况:充足
    • 物业情况:暂无

    拍卖信息

    • 拍卖阶段:一拍
    • 产权证号: ***
    • 房屋用途: ***
    • 租赁情况: ***
    • 抵押情况: ***
    • 查封情况: ***

    欠费及瑕疵

    注册登录可看立即注册

    房源特色

    房源标签
      \
    交通出行

    拍卖公告

    成交记录

    贷款计算

    • 贷款类型

    • 起拍价

      万元

    • 贷款比例

    • 商贷年限

    • 商贷利率

    • 还款方式

    • 开始计算

    月供(等额本息)

    小区介绍

    杨庄子小区 (本小区共有拍卖房 1套)

    查看小区详情
    • 建筑年代: 2018
    • 所在版块: 房山区
    • 物业费用: 1.8至2.2元/平米/月
    • 总户数: 538户
    • 停车位: 充足
    • 绿化率: 35%
    杨庄子小区 法拍小区
    房山区 长政南街8号院1号楼4层二单元402(杨庄子小区) 北京法拍房
    • 房山区 长政南街8号院1号楼4层二单元402(杨庄子小区)
    • 房山区 长政南街8号院1号楼4层二单元402(杨庄子小区)
    • 房山区 长政南街8号院1号楼4层二单元402(杨庄子小区)
    • 房山区 长政南街8号院1号楼4层二单元402(杨庄子小区)
    • 房山区 长政南街8号院1号楼4层二单元402(杨庄子小区)

    推荐房源

    海淀区 万柳华府龙园10号楼1层2单元1018号、车位及储藏间 北京法拍房

    海淀区 万柳华府龙园10号楼1层2单元1018号、车位及储藏间

    三室两厅-274.82/㎡ 4052.24万
    昌平区 昌平镇昌盛园小区二区8号楼6层2单元12 北京法拍房

    昌平区 昌平镇昌盛园小区二区8号楼6层2单元12

    三室两厅-143.24/㎡ 295.20万
    通州区 通胡大街68号19号楼3至4层50单元3D(水仙园)复式 北京法拍房

    通州区 通胡大街68号19号楼3至4层50单元3D(水仙园)复式

    三室两厅-175.36/㎡ 480.45万
    丰台区 南顶路281号6层3单元605(城市时尚家园) 北京法拍房

    丰台区 南顶路281号6层3单元605(城市时尚家园)

    三室一厅-161.57/㎡ 520.00万
  • 金超

    法拍经验:8年

  • 电话咨询
  • 在线咨询
  • 用户注册

    立即注册

    找回密码

    提交

    房源点评

    提交